36 South Lake Drive, Kidder Twp, PA 18624
- 5 beds |
- 2 baths |
- 1,584 sqft
Single-Family Home
Built in 1930
10,237sqft lot
8 car garage
$1,193/sqft
Listed 23 days ago
Property Description
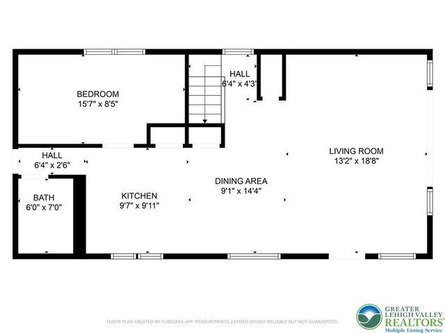
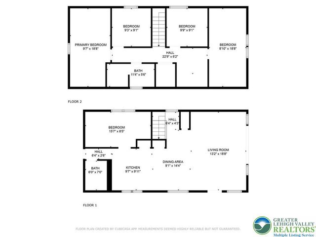
Experience lakefront living at its finest in this fully renovated and designer-furnished retreat. 36 South Lake Drive is a 5-bedroom, 2-bath getaway that blends rustic charm with modern comforts - all just steps from your private dock and panoramic waterfront views. Inside the spacious layout comfortably sleeps 16 and features a 23x14 living room with sliding doors that open to a lakeside deck. The updated kitchen includes a Samsung fridge, electric stove, microwave, and dishwasher. A cozy bedroom with deck access for the early risers, and full bath complete the first floor. Upstairs, four additional bedrooms and a full bath with generous dimensions make hosting a breeze. Modern conveniences include central AC, a water softener, recessed lighting, high-end washer/dryer combo, and a remote-controlled HVAC system for year-round comfort. Outside, gather around the private fire pit, store your gear in two sheds (16x12 and 6x8), or relax under an umbrella-covered seating with the lake just steps away. This idyllic family retreat or lucrative rental property includes private off-street parking for 8 vehicles. Immediately next door is 34 S Lake Drive, which is also for sale. The seller of these incredible properties may consider improved terms for buyers interested in purchasing both properties. The sale includes all fixtures, furnishings, and appliances. Virtual tour and floor plans are included with this listing.
- Listing Status:
- Active
- Listing Office:
- BHHS Fox & Roach Macungie : (484) 519-4444
- MLS ID:
- 764790
- General: DeckFenceFire PitPropane Tank - Owned
- Style: Other
- Parking: DrivewayOff Street
- Roofing: AsphaltFiberglass
- General: Wood Siding1
- Originating MLS: HIGH_LHI
- School District: Jim Thorpe
- County: Carbon
- Zoning: RES19A 21 C8
- View: LakePanoramicView
- Fencing: Yard Fenced
- Utilities: 100 Amp ServiceCircuit Breakers
- Water: Well
- Sewer: Grinder PumpPublic Sewer
- Source: HIGH_LHI
- Ownership: Fee Simple
This listing courtesy of BHHS Fox & Roach Macungie
Monthly Payment
- Principal & Interest $
- Property Taxes $
- Home Insurance $
- VA Funding Fee $
Location
Schools Nearby
Towamensing Elementary School
7920 Interchange Rd, Lehighton, PA, 18235
Grades KG-6
2.77 miles away
Palmerton Area Jr High School
3529 Fireline Rd, Palmerton, PA, 18071
Grades 7-8
6.67 miles away
Palmerton Area High School
3525 Fireline Rd, Palmerton, PA, 18071
Grades 9-12
6.66 miles away