6400 SW 133rd Dr, Pinecrest, FL 33156
- 4 beds |
- 3 baths |
- 3,120 sqft
Single-Family Home
Built in 1968
0.53acre lot
2 car garage
$633/sqft
Listed 2 days ago
Property Description
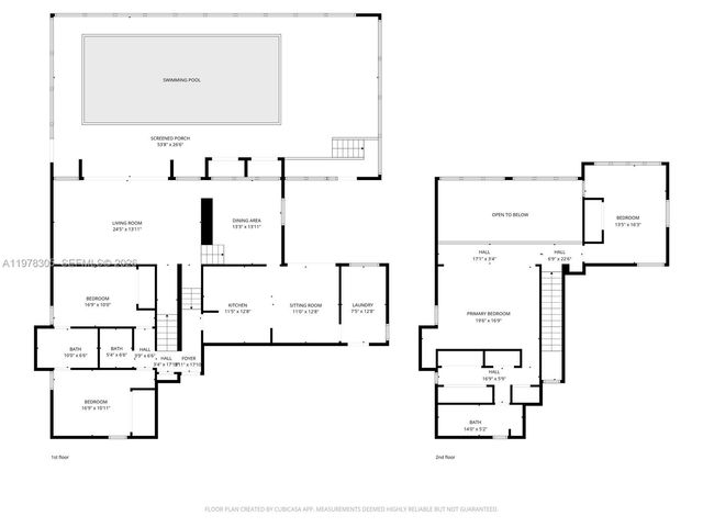
In an era of mass-produced homes, an exceptional opportunity awaits to own the first architectural creation of Charles Harrison Pawley. Designed during a period when Pawley was exploring the dramatic sculptural potential of concrete forms, this residence became the signature project that launched his celebrated career. Tucked within the prestigious Pinecrest enclave of Devonwood, this historic 4 bed/2.5 bath mid-century home captivates with its striking interplay of concrete and glass. Set on a lush half-acre, the house seamlessly connects to the natural backyard hammock through a dramatic two-and-a-half-story wall of glass, immersing the interior in greenery and light. Handcrafted materials define the interiors, including clay floors & exquisite woodwork, along with extensive built-in cabinetry. The exceptional craftsmanship was executed by renowned Swiss carpenter Fritz Gerber, while custom Mexican onyx furnishings were created by Enzo Vincente Gallo at the beginning of his own distinguished career. Over the past six decades, the home has been featured in numerous publications. Devonwood is one of the most desirable neighborhoods in this part of Miami-Dade, known for its dense tree canopy and estate-like privacy. The area sits on what was once Warwick Hammock, a remarkable collection of mature hardwoods and lush vegetation. Nearby are Fairchild Tropical Botanic Garden, Matheson Hammock Park, and the shops and restaurants of Coral Gables and South Miami. A Very Special Home.
- Listing Status:
- Active
- Date Added:
- March 10, 2026
- Data Last Updated:
- March 12, 2026 at 6:09PM
- Listing Office:
- Compass Florida, LLC : 305-697-2904
- Listing Agent:
- Cristina Formosa : 305-775-5330
- MLS ID:
- A11978305
- General: Lighting
- Style: DetachedTwo Story
- Pool: In Ground
- Parking: Circular Driveway
- Roofing: Concrete
- Windows: SkylightBlinds
- General: Concrete Block Construction
- Originating MLS: Miami Association of REALTORS®
- County: Miami-Dade County
- Zoning: 220013 55 40 DEVONWOOD PB 75-50 LOT 8 BLK 4 LOT SIZE 155.000 X 150 F/A/U 30-5013-023-026020-50-13-023-0260
- View: GardenPool
- Fencing: Fenced
- Water: Municipal Water
- Sewer: Septic Tank
- Source: Miami Association of REALTORS®
This listing courtesy of Cristina Formosa , Compass Florida, LLC
Monthly Payment
- Principal & Interest $
- Property Taxes $
- Home Insurance $
- VA Funding Fee $
Location
Schools Nearby
Howard Drive Elementary School
7750 SW 136th St, Miami, FL, 33156
Grades PK-5
1.34 miles away
Palmetto Middle School
7351 SW 128th St, Pinecrest, FL, 33156
Grades 6-8
1.03 miles away
Miami Palmetto Senior High School
7431 SW 120th St, Pinecrest, FL, 33156
Grades 9-12
1.43 miles away






